| MGF Drilling Tools
Core Barrels |
Casings -
double walled Casing Joints - double walled Clay Augers Rock Augers Core Barrels Cleaning Buckets Double Bottom Buckets |
![]() |
![]() |
any other type or specification on request |
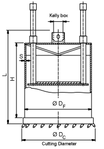
Ø DC |
Ø DF |
L |
H |
s |
Kelly box |
Weight |
mm |
mm |
mm |
mm |
mm |
mm |
approx. kg |
400 |
370 |
1350 |
1000 |
12 |
130 x 130 |
260 |
450 |
420 |
1350 |
1000 |
12 |
130 x 130 |
293 |
500 |
470 |
1350 |
1000 |
12 |
130 x 130 |
324 |
600 |
570 |
1350 |
1000 |
12 |
130 x 130 |
387 |
700 |
670 |
1350 |
1000 |
12 |
130 x 130 |
452 |
800 |
770 |
1350 |
1000 |
12 |
130 x 130 |
518 |
900 |
870 |
1350 |
1000 |
12 |
130 x 130 |
631 |
1000 |
970 |
1400 |
1000 |
12 |
130 x 130 |
725 |
1100 |
1070 |
1400 |
1000 |
12 |
130 x 130 |
811 |
1200 |
1170 |
1400 |
1000 |
12 |
150 x 150 |
884 |
1300 |
1270 |
1400 |
1000 |
12 |
150 x 150 |
970 |
1400 |
1370 |
1400 |
1000 |
12 |
150 x 150 |
1054 |
1500 |
1470 |
1400 |
1000 |
15 |
150 x 150 |
1185 |
1800 |
1770 |
1400 |
1000 |
15 |
150 x 150 |
1390 |
2000 |
1970 |
1400 |
1000 |
15 |
200 x 200 |
1525 |
2500 |
2470 |
1400 |
1000 |
15 |
200 x 200 |
1870 |
3000 |
3970 |
1400 |
1000 |
15 |
200 x 200 |
2305 |
| Subject to constant improvement and engineering progress we reserve the right to make changes of specification without notice. |
| MGF Geotec GmbH Industriestraße - D-53577 Neustadt/Fernthal - Germany Tel. +49 2683 983-0 - Fax +49 2683 983-200 |